•ССДКС предназначена для осуществления непрерывного мониторинга и контроля состояния контактной сети (КС) в процессе эксплуатации. Позволяет на ранних стадиях выявлять неисправности КС, не допускать появления критических отказов, для обеспечения безопасности и непрерывности движения. Своевременно планировать ремонтные и профилактические работы.
•ССДКС относится к диагностическим, дистанционным измерительным системам. Проект позволяет осуществить создание инновационного производства, создать инфраструктурные диагностические центры контроля контактной сети для обеспечения безопасности и непрерывности железнодорожного движения.
•В полном составе позволит контролировать: oсилу натяжения контактных проводов (КП), несущего троса (НТ) и их обрыв, oисправность компенсирующих устройств, o температуру проводов контактной подвески (КП, НТ, шлейфов и т.д.) в местах максимальной плотности токов, oуглы наклона и вибрацию опор КС, расположенных в карстоопасных зонах, на слабых основаниях, в зонах подтопления, зонах склоновых процессов, oобразования гололеда, oконтроля силы нажатия токоприемников в процессе эксплуатации электроподвижного состава, oконтроля геометрии токоприемников электроподвижного состава. oдополнительно возможно включение в систему других датчиков контроля инфраструктуры ж.д.
ССДКС представляет собой пространственно-распределенную диагностическую систему, построенную по модульному принципу и позволяет расширять систему в зависимости от требуемой диагностики.
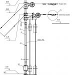
•Состоит из набора стационарных беспроводных устройств мониторинга (СУМ) с автономным питанием и модулей передачи данных, щитов концентраторов данных с солнечными панелями и радиомодемами и(или) с установкой медиа конверторов для ВОЛС.
•Датчики СУМ и щиты концентраторов устанавливаются на анкерных опорах КС, НТ, КП и др. •Время жизни СУМ без замены элементов питания – до 10 лет.
Датчики непрерывного мониторинга объединяются в ячеистые сети, передача данных происходит как по радиоканалу с использованием GSM модемов, так и по ВОЛС. Использование солнечных панелей позволяет применять систему мониторинга на участках, где нет возможности использовать стационарное питание.
Возможно развертывание системы как на существующих участках контактной сети, так и на вновь проектируемых, в том числе на ВСМ. Сбор данных и их анализ происходит в специализированных центрах обработки.
Программное обеспечение позволяет осуществлять контроль за параметрами, выявлять предотказные состояния, архивировать данные, производить анализ, удаленную диагностику и тестирование датчиков.





